产品中心

产品中心

Product

微压调节阀(自力式)

91热亚洲精品在线国产

技术参数

产品型号:ZZVP、ZZCP

公称通径:DN20~100mm

压力范围:PN0.1~1.0MPa

使用温度:≤ 80℃

制造标准:GB/T4213-1992

法兰标准:GB/T9113-2000

阀门材质:WCB、CF8

密封填料:V型聚四氟乙烯(F4)、柔性石墨

控制精度:±10(%)

泄露等级:ANSI B16.104-1976(IV级)

产品详情

产品概述

      自力式差(微)压调节阀是一种无需外来能源的节能型产品,利用工艺管道中介质的压力变化与信号进行比较,使被调节介质的力与执行机构的输出力平衡,以达到稳定压力、差压值。 ZZCP-1型差压阀,采用平衡型单座阀,压力稳定、精度高、密封性好,用于控制微小差压。 ZZCN-10型差压阀采用双座阀,流量系数大,将阀芯正、倒装,可组成二个不同品种的产品。该产品适用于各种工业炉燃烧系统控制两种燃料气体混合比流量或用于氢冷发电机组密封油系统中,同时,还可用于各种工业气体的减压、稳压或泄压的自动控制。

      ZZVP型微压阀,采用平衡单座阀,在运行中可任意对设定值进行调整等特点。因而适用于各种工业炉燃烧统燃料气体、石油在制品或油库贮罐保护气体与热处理保护气体的微压自动调节等场合。


产品特点

      1、微压调节阀无需外加能源,利用工艺管道中介质的压力来自行调节,既方便又节约能源;

      2、压力分段范围细且互相交叉,调节精度高,压力设定值在运行期间可连续设定;

      3、对阀后压力调节,阀前压力与阀后压力之间比为10:1~10:8;

      4、橡胶膜片式检测,执行机构检测精度高、动作灵敏;

      5、采用压力平衡机构,使调节阀反应灵敏,控制精确。


图片.png



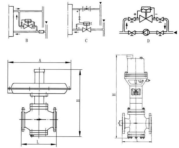
主要外形尺寸及重量

DN

20

25

32

40

50

65

80

100

A

308

394

308

394

308

394

394

394

H

ZZCP/ZZVP

376

465

365

445

445

490

490

510

ZZCN

536

536

L

ZZCP/ZZVP

150

160

180

200

230

290

310

350

ZZCN

222

222

重量 G(Kg)

12

13

15

17

20

28

38

43

导压管螺纹接头

M16X1.5