产品中心

产品中心

Product

自力式压力调节阀(直接作用型)

91热亚洲精品在线国产

技术参数

产品型号:V231

公称通径:DN20~250mm 

公称压力:PN1.6、2.5、4.0 MPa

适用温度:液体≤ 140℃、气体≤ 80℃ 

主要材质:铸铁、铸钢、铸不锈钢

法兰标准:DIA (亦可按用户要求提供法兰标准)

产品详情

产品概述

      直接作用型自力式压力调节阀是由阀体、阀座、阀芯部件等零部件组成,是一种无需外来能源而只依靠被调介质自身的压力变化进行自动调节压力的节能型产品,可用于非腐蚀性(温度≤350℃)的液体、气体和蒸汽等介质的压力控制装置。广泛适用于石油、化工、冶金、轻工等工业部门及城市供热、供暖系统。





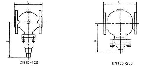
V231D01自力式压力调节阀(图1)



主要尺寸及重量

公称通径 mm

20

25

32

40

50

65

80

100

125

150

200

250

L mm

150

160

180

200

230

290

310

350

400

480

600

730

B mm

212

238

238

240

240

275

275

380

380

295

325

372

大约重量 kg

6.7

9.7

13

14

17

29

33

60

70

80

140

220



V231D01自力式压力调节阀(图2)

执行器尺寸及重量

有效面积 cm2

32

80

250

630

D (mm)

172

172

263

380

H (mm)

440

435

440

520

大约重量 kg

7.5

7.5

13

28

    注:直接作用式自力式阀的总高及总重为控制阀与执行器高度及重量之和。