产品型号:VQ647H/Y/F
公称通径:DN25~300mm
压力范围:PN1.6MPa~4.0MPa
使用温度:-29℃~425℃
适用介质:油品、纸浆、糖液、固态颗粒
阀门材质:不锈钢304、316L
结构形式:固定式球阀
配套附件:电磁阀、定位器、讯位开关
气源附件:气源处理三联件
产品结构特征
V型球阀是一种角行程回转式调节球阀,由V型球阀和执行机构及其他附件组成。它以压缩空气为动力,阀杆带动球体在阀体内转动90度,实现全开和全闭的动作,阀芯上的V型口与阀座之间具有剪切作用,具有极好的调节和切断性能。该阀主要用于石油、化工、造纸、冶金、污水处理、油罐车等行业,对各种液体、气体、料浆类介质的调节和切断控制,尤其适用于控制高黏度、带有纤维和颗粒的介质。
V型球阀的密封型式有软密封、硬密封两种,执行机构有气动、电动等,配有定位器、电磁阀等附件,可以实现比例调节。
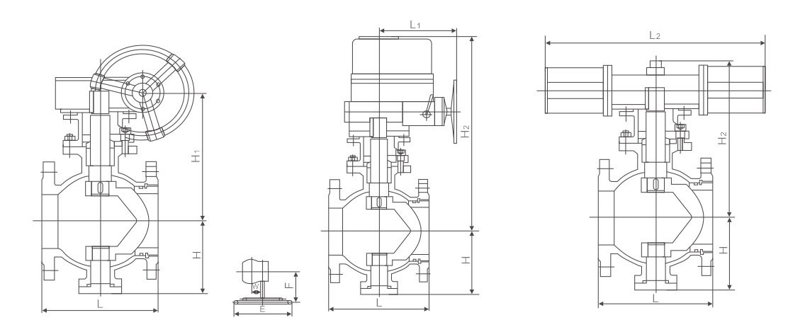
主要连接尺寸 PN16
|
DN(mm) |
50 |
65 |
80 |
100 |
125 |
150 |
200 |
250 |
300 |
400 |
500 |
|
|
L |
124 |
145 |
165 |
194 |
210 |
229 |
243 |
297 |
338 |
533 |
660 |
|
|
H |
102 |
114 |
127 |
152 |
184 |
219 |
273 |
360 |
395 |
470 |
580 |
|
|
手动 |
H1 |
107 |
125 |
152 |
178 |
300 |
330 |
398 |
495 |
580 |
670 |
840 |
|
E |
- |
- |
- |
- |
- |
- |
116 |
116 |
171 |
257 |
257 |
|
|
F |
- |
- |
- |
- |
- |
- |
350 |
350 |
400 |
400 |
400 |
|
|
W |
230 |
40 |
400 |
650 |
1050 |
1050 |
600 |
600 |
800 |
800 |
800 |
|
|
WT(kg) |
12 |
16 |
22 |
35 |
58 |
74 |
205 |
322 |
460 |
864 |
1600 |
|
|
电动 |
H2 |
- |
- |
- |
- |
- |
554 |
600 |
652 |
760 |
830 |
940 |
|
L1 |
- |
- |
- |
- |
- |
235 |
235 |
235 |
259 |
400 |
410 |
|
|
气动 |
H3 |
274 |
379 |
389 |
479 |
552 |
666 |
736 |
926 |
1059 |
1393 |
1538 |
|
L2 |
270 |
405 |
405 |
576 |
576 |
776 |
776 |
776 |
1060 |
1360 |
1360 |
|