产品型号:ZZWPE
公称通径:DN20~200mm NPS 3/4"~8"
公称压力:PN1.6~4.0MPa;CLASS 150~300LB
连接方式:丝口、法兰
适用温度:-20~+425℃
阀芯形式:非平衡式单座阀芯
适用介质:冷热水、蒸汽
产品概述
ZZYPE电动自力式温度调节阀,是由阀门 、执行器、温控器、传感器和毛细管等部件组成的一体阀,直接对蒸汽、热水、热油与气体等介质的温度实行自动调节和控制,亦可使用在防止对过热或热交换场合,电动温度控制阀结构简单,操作方便,选用调温范围广、响应时间快、密封性能可靠,并可在运行中随意进行调节,因而广泛应用于化工、石油、食品、轻纺、宾馆与饭店等部门的热水供应。主要适用于液体、气体和蒸汽,在各种冷却系统中的温度控制。
产品特点
1、控制温度的设定在执行器外部,设定温度方便。
2、温度调节阀数字显示实测温度、简洁直观明了。
3、调节型执行器的关键部件--控制器,采用混合集成电路,经过老化处理,用树脂密封浇铸,呈匣子状,防潮、防震,体积小,可靠性高。
4、电动温度调节阀合理设计上下电气限位功能、弱电控制、可靠耐用。
5、机械结构坚固紧凑,联线、安装、调整维护十分简便。
6、用电位器调整工作零点(起始)和行程满位(终点)灵敏度等简单易行。
7、温控阀执行器具有过载保护、温度保护及压缩弹簧保证阀门的严密关闭的三种保护功能。
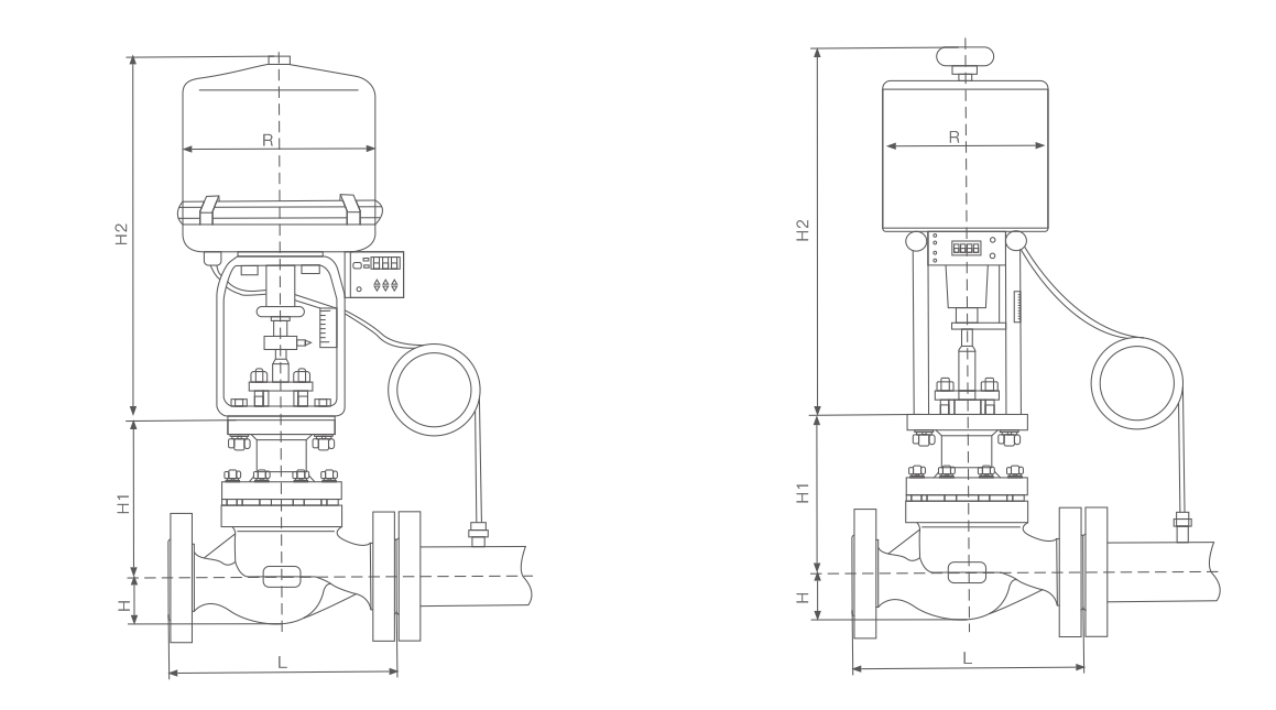
主要连接尺寸
|
公称通径DN(mm) |
20 |
25 |
32 |
40 |
50 |
65 |
80 |
100 |
125 |
150 |
200 |
|
|
L |
PN16/25 |
181 |
184 |
200 |
222 |
254 |
276 |
298 |
352 |
410 |
451 |
600 |
|
PN40 |
194 |
197 |
200 |
235 |
267 |
292 |
317 |
368 |
425 |
473 |
610 |
|
|
PN64 |
206 |
200 |
210 |
251 |
286 |
311 |
337 |
394 |
440 |
508 |
650 |
|
|
H |
PN16/25 |
52.5 |
57.5 |
75 |
75 |
85.5 |
92.5 |
100 |
110 |
142.5 |
158 |
170 |
|
PN40 |
52.5 |
57.5 |
75 |
75 |
82.5 |
92.5 |
100 |
117.5 |
150 |
167.5 |
187.5 |
|
|
PN64 |
65 |
40 |
85 |
85 |
90 |
102.5 |
107.5 |
125 |
172.5 |
195 |
207.5 |
|
|
H1 |
132 |
132 |
158 |
170 |
179 |
214 |
221 |
234 |
270 |
294 |
331 |
|
|
H2 |
CHL |
465 |
465 |
465 |
465 |
465 |
560 |
560 |
560 |
560 |
560 |
788 |
|
3810 |
373 |
373 |
495 |
495 |
495 |
700 |
700 |
700 |
725 |
725 |
725 |
|
|
D |
177 |
177 |
177 |
177 |
177 |
182 |
182 |
182 |
182 |
182 |
218 |
|
|
R |
225 |
225 |
225 |
225 |
225 |
257 |
257 |
257 |
310 |
310 |
310 |
|